
28
Co-Working
Arbeitsplätze
Sarobagasse 9 in 2103 Langenzersdorf, Gleich bei der S-Bahn
Meetingraum, Phone-Booth, Outdoor-Pool Küche & Vieles Mehr!
Genieße Zahlreiche Vorteile in einem gemütlichen familiären Umfeld.

Deine Vorteile
Im Überblick
Bei uns genießt du neben den bereits genannten, noch weitere zahlreiche Vorteile, die dir das Arbeiten erleichtern. Manche Services gegen extra Gebühr.

High-Speed WLAN
Drucken & Scannen
Zutritt 24/7
Phone Booth
Sodawasser

Reinigung
Obst & Snacks
Meeting Room
Digitaler Zutritt
Mikrowelle
Kaffee & Tee

Aktenvernichtung
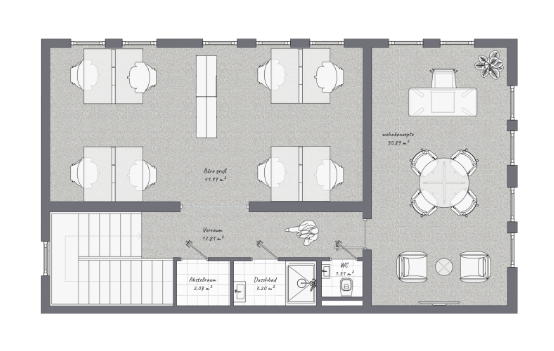
Grundriss
Unsere Bürofläche verteilt sich auf 3 Ebenen: In Ebene 1 ist Emfpang, Lounge, Arbeitsplätze, Toiletten und das Phone Booth. In Ebene 2 befindet sich der Meetingraum und 8 Arbeitsplätze und in Ebene 3 weitere 8 Arbeitsplätze und ein Duschbad falls du mit dem Rad kommen möchtest und eine Erfrischung benötigst.

Unser Standort
Unsere Lage ist verkehrsgünstig in der Nähe des Bahnhofs. Ebenfalls direkt in unserer Umgebung:
Apotheke, Lebensmittelgeschäfte, die Post und eine Bäckerei.















